CPAS Chastre 2022
Programme : Transformation d'un bâtiment pour abriter des services communaux
Maître de l'Ouvrage : Administration communale de Chastre
Lieu : rue Montagne du Parc 18, 1400 Nivelles
Coût : 2.975.000 euros htva
Surface : 1.787 m²
Dates : 2022
Statut : Concours
Partenaires : -
Photos : -
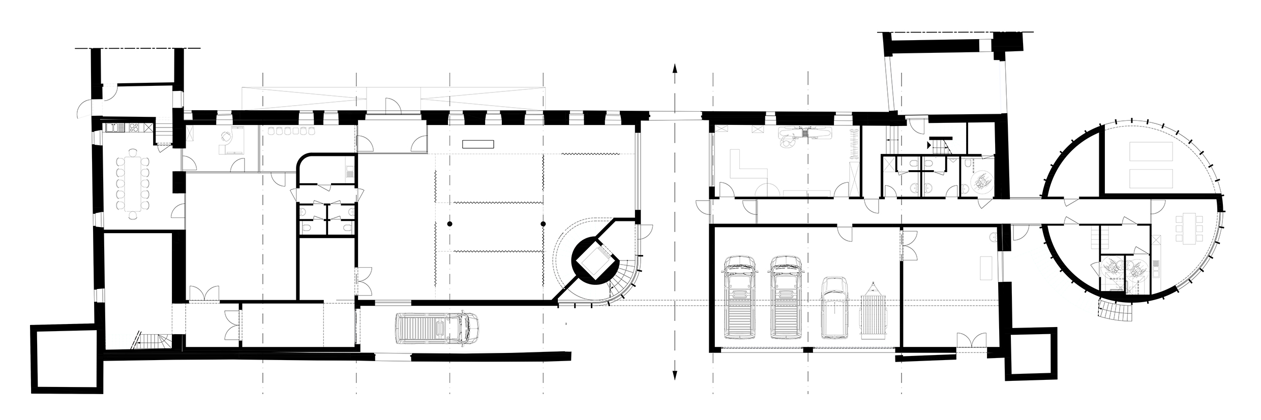
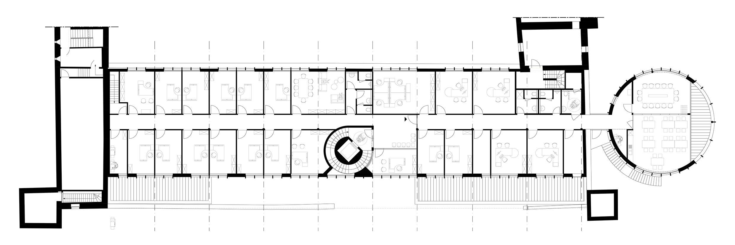
Le projet vise, avant tout, au respect du patrimoine bâti existant. La volumétrie générale évite les rapports de force et préserve la perception des volumes existants. L’aspect fermé et monolithique des grands murs aveugles qui caractérisent la ferme en carré est préservé. L’intervention architecturale conjugue intégration et singularité. La grande toiture en zinc anthracite fait écho à la tonalité des toitures existantes en ardoises, tout en apportant un caractère contemporain, épuré et rectiligne. Les façades sont revêtues de bois contrastant avec la teinte et l’aspect massif du parement de brique et de pierre. Les façades sont scandées par des poteaux en bois qui leur confèrent une rythmique, des « nervures » qui accrochent la lumière et créent des jeux d’ombre, conférant à l’ensemble « une vibration », un aspect changeant au fil de la course du soleil. Ce matériau constitue aussi la vitrine de l’aspect durable du bâtiment.





